Solutions
Horse Construction offers full range of structural strengthening materials with technical supports, documentation supports, products supports, project supports.
Carbon fiber wrap

Project Overview
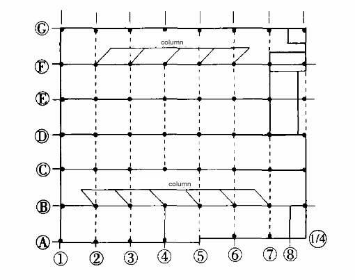
The top 100 shopping malls in Hangzhou have a reinforced concrete structure with one floor underground and four floors above ground. The existing shopping malls need to add a layer of structure due to operational needs. As the load increases after the building is added, it is necessary to strengthen part of the frame columns of the original structure basement, see Figure 1 for details

Column reinforcement plan
Reinforcement material: HM-20 unidirectional carbon fiber, HM-30 unidirectional carbon fiber, HM-180C3P carbon fiber adhesive


Key feature of unidirectional carbon fiber fabric
• Flexible
• High strength
• High modulus
• Easy to install
• Long shelf life
• Light self weight
• High toughness
• Anti high temperature
• Environmental-friendly
• Carbon fiber wrap used for shear strengthening, confinement strengthening, flexural strengthening
Colum reinforcement
It is reinforced with two layers of carbon fiber wrap continuously pasted without gaps.
After the reinforcement, the bearing capacity of the frame column is increased by 530 kN, while the newly added load is only 192 kN, which meets the requirements.
Since the elastic modulus of carbon fiber wrap is similar to that of concrete, the ductility of the column is improved, and at the same time, it can prevent cracks from appearing or limit the development of cracks, and significantly improve the shear bearing capacity of the column.
Economic cost analysis
11 frame columns reinforced with common glue removal: 270 kg; carbon fiber wrap: 95 m2.
From the cost comparison table analysis: the total cost of using carbon fiber reinforced columns is: xxxxx yuan, which is 24,200 yuan less than the cost of steel plate reinforcement. With the same labor force, the construction period is only 8 d. In addition, the construction period has little impact on the noise and environment of the basement garage, and it does not affect the normal use function of the basement garage. The economic and social benefits of construction using this scheme are very obvious.
Conclusion
The use of carbon fiber wrap to reinforce the frame column has minimized the impact on the environment and the normal business operations of the mall, and the various indicators of economic benefits have achieved the expected purpose.
You can find anything here you are in need of, have a trust trying on these products, you will find the big difference after that.
High strength, unidirectional carbon fiber wrap pre-saturated to form a carbon fiber reinforced polymer (CFRP) wrap used to strengthen structural concrete elements.
High strength, unidirectional carbon fiber fabric pre-saturated to form a carbon fiber reinforced polymer (CFRP) fabric used to strengthen structural concrete elements.
High strength, unidirectional carbon fiber sheet pre-saturated to form a carbon fiber reinforced polymer (CFRP) sheet used to strengthen structural concrete elements.